contact
home
Work
About
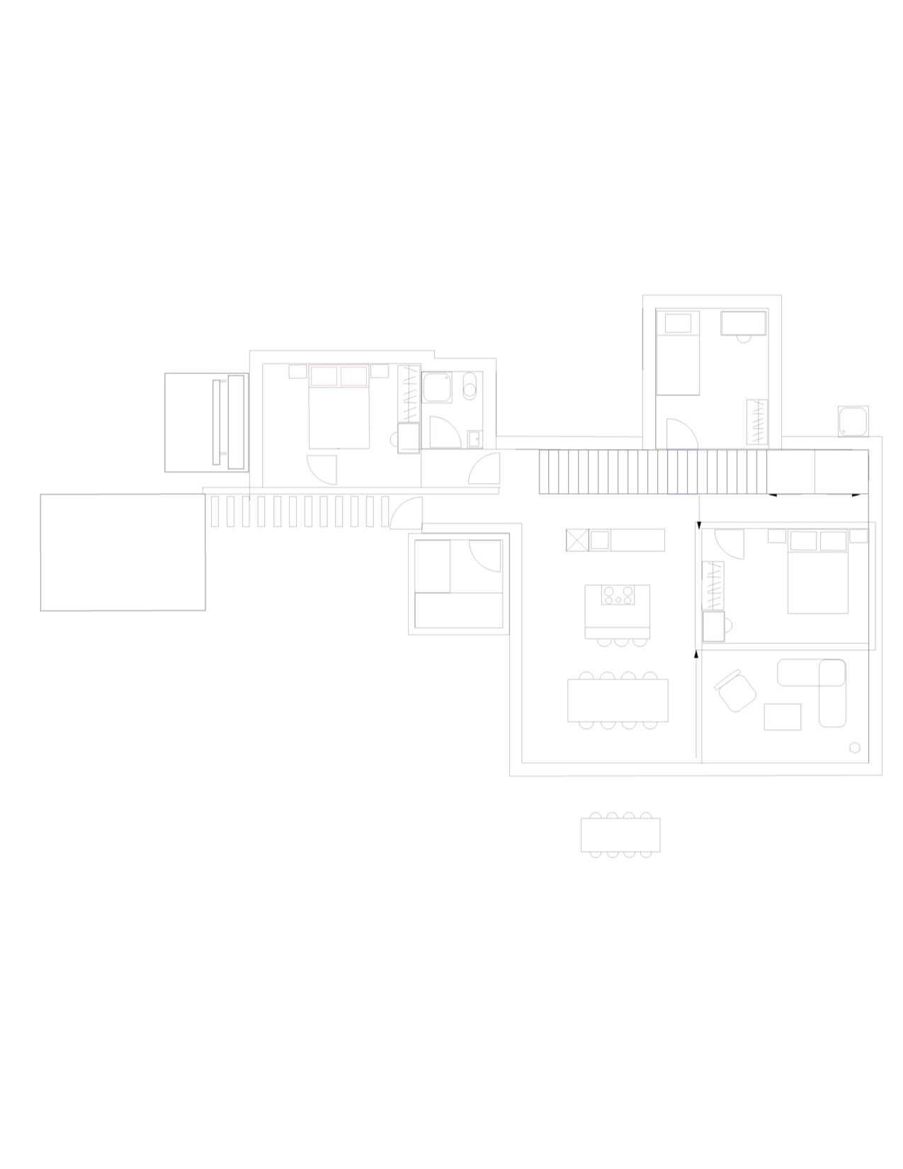
Pleubian_House
Architecture |
Proposal for an house in Pleubian, Brittany.
process
Next Page ︎︎︎
home